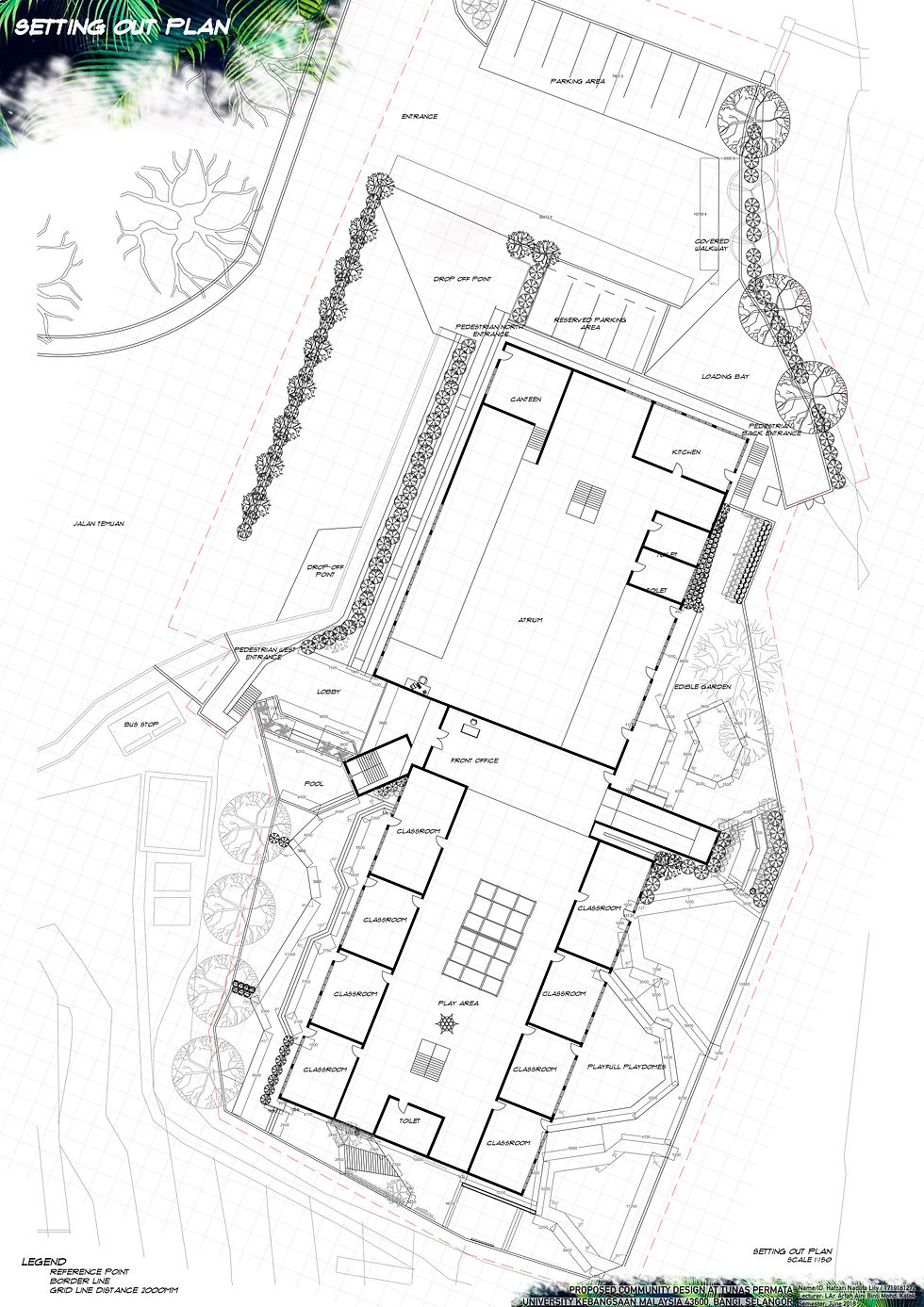
Studio 4
Propose Community Design at Tunas Permata Kindergarten, Bangi, Malaysia
Metamorphosis (2018)
Metamorphosis is a process where an insect transform from their immature form to a more adult form. A change of the form or nature of a thing or person into a completely different one. The relation of the concept with the proposed site is about the “development" or " changes " where children of 2-6 years old are on an important basic development stage which will shapes them into who they will be in the future.
Issues
-Children rarely use the outdoor play area.
-Lack of safety in term of animal's disturbance.
-Lack of sense of welcoming at the primary node.
Design Goal
The concept aims to create a safe yet playful and explorative playground for both typical and special need children in order to further development according to their perspective milestone.
Design Objectives
-Creating an attractive playground that encourage children to play and explore outdoor rather than indoor by replacing the old fashioned play equipment or play structures with the proper ones.
-Enhance the primary nodes by proposing soft landscape elements to improve the visual quality
Characteristic of Space:
Dynamic action (Bold form, bright colour and solid material such as concrete , wood , or steel).




Gallery









